KUCHEROV
STUDIO
Portfolio
About
Contacts
U20 House | Kucherov Studio
Back to Projects
Like
Share
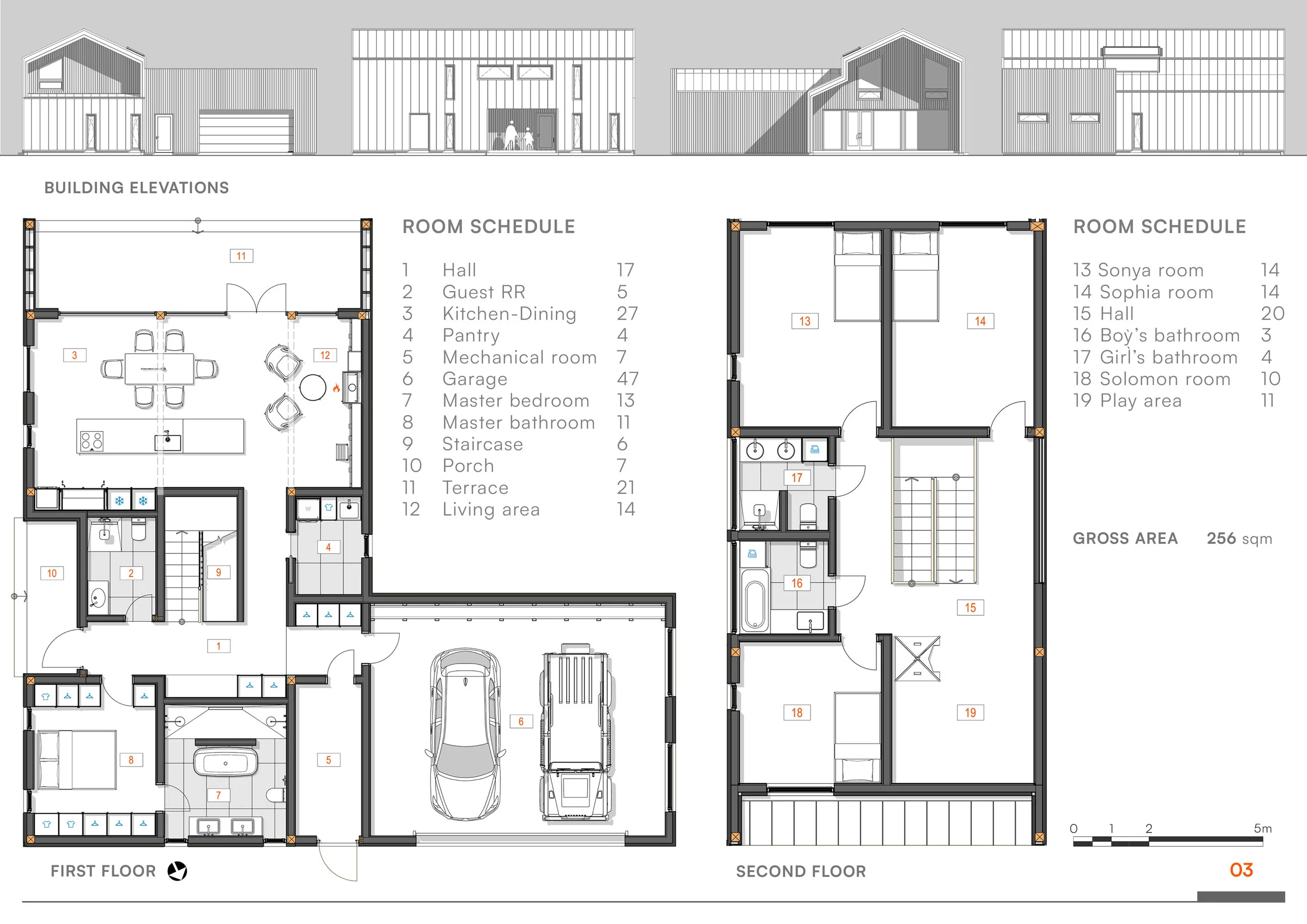
U20 House
Architectural Design
Kyiv, UA
2024
Lot: 22.174sq.ft. (2.060sqm) | Building: 3.245sq.ft. (302sqm)
Project description coming soon.
Credits
Architect
Aleksander Kucherov
Architect assistant
Aleksander Kucherov
Software
Render
Corona
3D modeling
3ds Max
BIM-modeling
Revit
Working drawings set
Revit
Inquire This Project