KUCHEROV
STUDIO
Portfolio
About
Contacts
2D and 3D floor plans | Kucherov Studio
Back to Projects
Like
Share
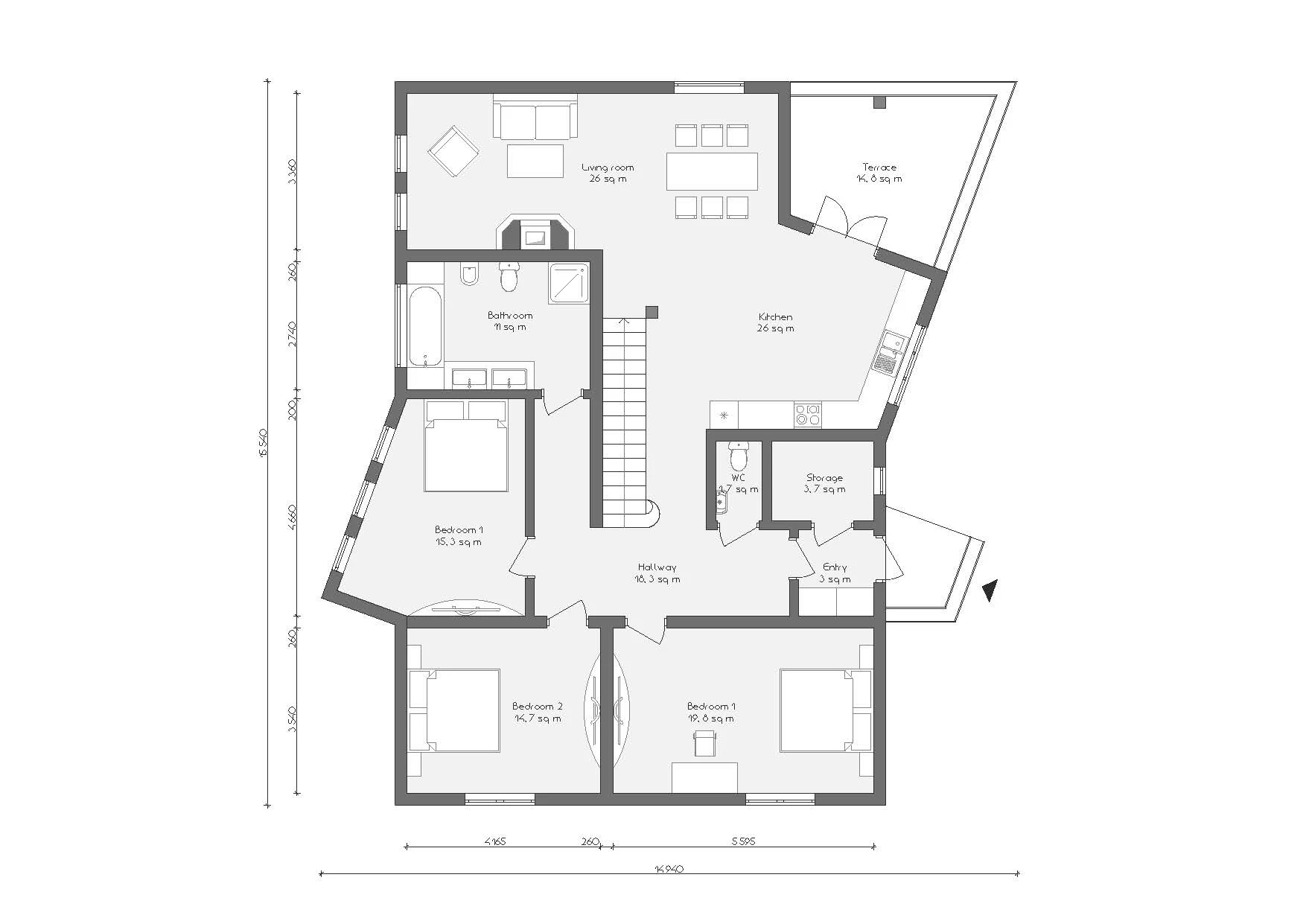
2D and 3D floor plans
Construction Drawings
Location N/A
202X
N/A
Project description coming soon.
Inquire This Project